
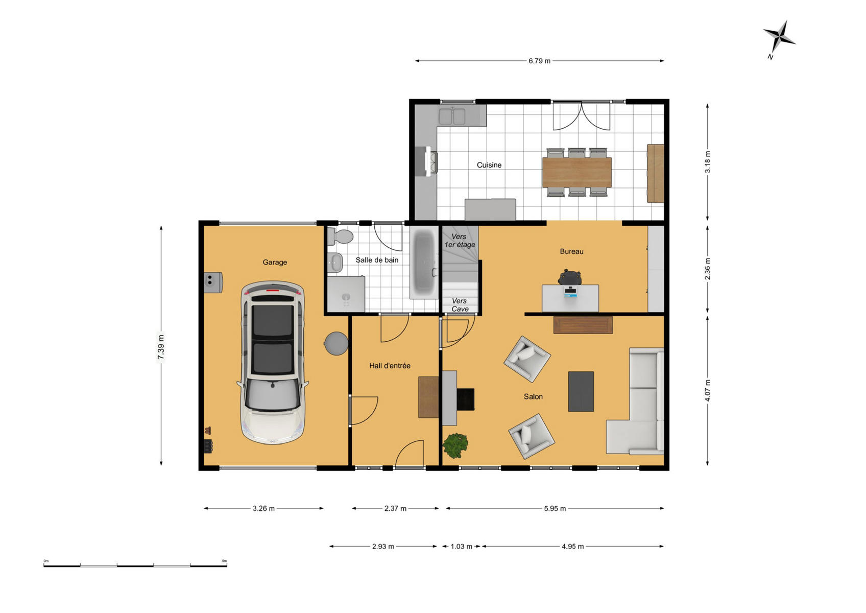
***VENDU***** Jolie maison 3 façades avec grand jardin et garage. Au rez de chaussée: spacieux hall d'entrée de +/-10m², garage de +/ 24m², salle de bain de +/- 7m² avec bain, douche et w.c, salon de +/- 24m², bureau de +/- 12m² et grand cuisine ouverte sur salle à manger de +/-21,5m². Au sous sols: 2 caves de 7m² . Au 1er étage: Un hall de nuit de 4,5m², chambre 1 de 33m² avec placards, lavabo et w.c, chambre 2 de +/- 9m², chambre 3 de +/- 15m², pièce à aménager de +/- 9m². Confort: chauff.central mazout, double vitrage, toiture ok avec isolation. PEB:333 kwh/m².an, conso.totale: 54289 kwh/an. Co²: 84kg. N°unique: 20230419013912. RC: 572E (possibilités des frais réduits à 6%). Prix: Faire offre à partir de 215.000€. Contact: Sophie Renard (Sofoximmo) 0471/85.36.79
Adresse :
Rue des Panottes 33 - 7830 Silly
Référence | 5315863 |
---|---|
Catégorie | Maison |
Meublé | Non |
Nombre de chambres | 3 |
Nombre de salles de bain | 1 |
Jardin | Oui |
Surface du jardin | 900 m² |
Garage | Oui |
Terrasse | Oui |
Parking | Oui |
Surface habitable | 150 m² |
Surface du terrain | 1130 m² |
Disponibilité | à l'acte |
Année de construction | 1870 |
---|---|
Nombre de garage | 1 |
Parking intérieur | Non |
Parking extérieur | Oui |
Parking(s) extérieur (nombre) | 2 |
Nombre d'étages | 1 |
---|
Accès handicapés | Oui |
---|---|
Ascenseur | Non |
Double vitrage | Oui |
Chauffage (type) | mazout (chauf. centr.) |
Type de cuisine | équipée |
Sdb (type) | douche et bain |
Orientation du bâtiment (façade arrière) | sud-est |
---|---|
Type d'environnement | calme |
Type d'environnement 2 | campagne |
Exposition de la façade avant | nord-ouest |
Risque d'inondation (type innondation) | pas situé en zone inondable |
Buanderie | Oui |
---|---|
Bureau | Oui |
Cave | Oui |
Nbre de toilette(s) (nombre) | 2 |
---|---|
Nombre de sdd | 0 |
Chambre 1 (surface) | 33 m² |
Chambre 2 (surface) | 9 m² |
Chambre 3 (surface) | 15 m² |
Nbre de terrasse(s) (nombre) | 1 |
Salle de séjour (surface) | 24 m² |
Salle à manger (surface) | 21.5 m² |
Bureau (surface) | 12 m² |
Orientation de la terrasse 1 | sud-est |
Volets | Oui |
---|---|
Volets (type) | au RDC |
Magasins (distance (m)) | 6000 |
---|---|
Écoles (distance (m)) | 450 |
Transports en commun (distance (m)) | 20 |
Centre sportif (distance (m)) | 3600 |
Magasins | Oui |
Ecoles | Oui |
Transports en commun | Oui |
Centre sportif | Oui |
Autoroute | Oui |
Autoroute (distance (m)) | 1100 |
Précompte immobilier (montant) | 618.63 € |
---|
Piscine | Non |
---|
Revenu cad. indexé (montant) | 1043 € |
---|---|
Surface (ha/a/ca) (surf. (ha/a/ca)) | 1130 |
Revenu cadastral (€) (montant) | 572 € |
Servitude | Non |
---|
Égouts | Oui |
---|---|
Électricité | Oui |
Télévision par cable | Oui |
Eau | Oui |
Châssis (type) | bois ou pvc |
---|
Certificat d'électricité (oui/non) | oui, non conforme |
---|
Label PEB (classe) | D |
---|---|
PEB E-SPEC (kwh/m²/an) | 333 |
Emission CO2 (émission CO2) | 84 |
E total (Kwh/an) | 54289 |
PEB code unique | 20230419013912 |
PEB valide jusqu'au (datetime) | 19/04/2033 |
Date du PEB (datetime) | 19/04/2023 |