
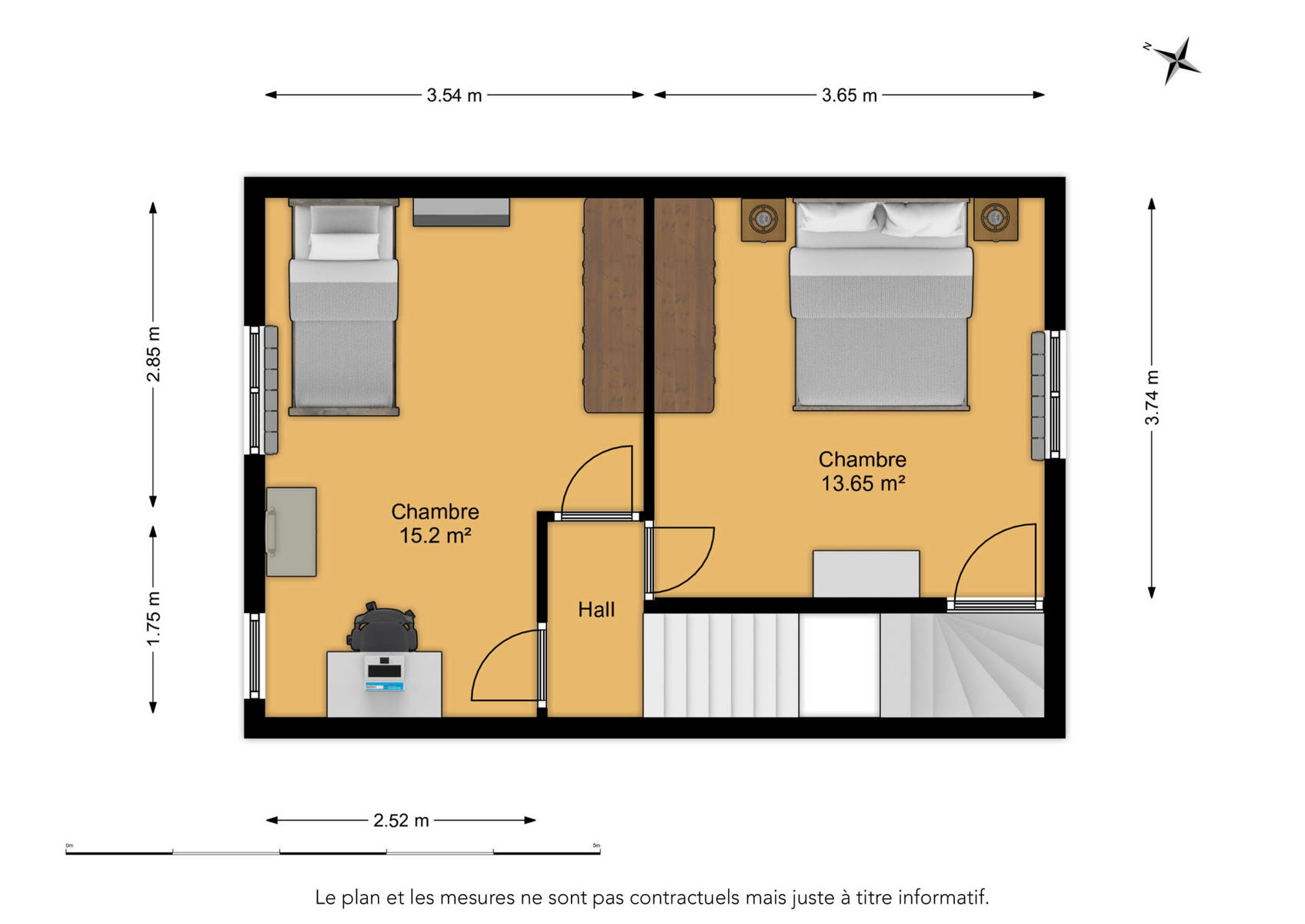
***VENDU***Maison 3 façades, très bien située à Kain, à remettre au gout du jour. La maison est composée comme suit: hall d'entrée, living de +/- 27m², cuisine de +/-14m², buanderie, arrière cuisine, salle de bain avec w.c. Au 1er étage: hall de nuit, 2 chambres de +/- 15 et 14 m². Au 2eme étage: grand grenier de +/- 31m² aménageable en 2 chambres supplémentaires.
Sous-sols: 2 grandes caves de +/- 14 et 16m² avec chaufferie. Extérieur: jardin et terrasse orientés sud ouest, garage, cabanon de jardin. Chauffage central au gaz. PEB: G 607 kWh/m².an, conso.totale: 81 488 kWh/an, CO2: 111 kg/m².an, n° unique: 20230124010952. R.C: 513€ (possibilité des frais réduits). Prix: faire offre à partir de 160.000€. Contact: Sofoximmo (Sophie Renard) 0471/85.36.79
Adresse :
Rue Pierre 57 - 7540 Tournai
Référence | 5234649 |
---|---|
Catégorie | Maison |
Meublé | Non |
Nombre de chambres | 3 |
Nombre de salles de bain | 1 |
Jardin | Oui |
Surface du jardin | 80 m² |
Garage | Oui |
Terrasse | Oui |
Parking | Oui |
Surface habitable | 134 m² |
Surface du terrain | 230 m² |
Disponibilité | à l'acte |
Année de construction | 1920 |
---|---|
Nombre de garage | 1 |
Parking intérieur | Non |
Parking extérieur | Non |
Année de rénovation | 1997 |
Parking(s) extérieur (nombre) | 1 |
Nombre d'étages | 2 |
---|
Accès handicapés | Non |
---|---|
Chauffage (ind/coll) (type (ind/coll)) | individuel |
Ascenseur | Non |
Double vitrage | Oui |
Chauffage (type) | gaz (chau. centr.) |
Type de cuisine | semi-équipée |
Sdb (type) | bain |
Buanderie | Oui |
---|---|
Grenier | Oui |
Cave | Oui |
Nbre de toilette(s) (nombre) | 1 |
---|---|
Nombre de sdd | 0 |
Chambre 1 (surface) | 14 m² |
Chambre 2 (surface) | 14 m² |
Chambre 3 (surface) | 31 m² |
Nbre de terrasse(s) (nombre) | 1 |
Salle de séjour (surface) | 27 m² |
Cuisine (surface) | 14 m² |
Orientation de la terrasse 1 | sud-ouest |
Volets | Oui |
---|
Magasins (distance (m)) | 2000 |
---|---|
Écoles (distance (m)) | 300 |
Transports en commun (distance (m)) | 150 |
Centre sportif (distance (m)) | 2000 |
Magasins | Oui |
Ecoles | Oui |
Transports en commun | Oui |
Centre sportif | Oui |
Autoroute | Oui |
Autoroute (distance (m)) | 3000 |
Précompte immobilier (montant) | 60514 € |
---|
Piscine | Non |
---|
Revenu cad. indexé (montant) | 979 € |
---|---|
Revenu cadastral (€) (montant) | 513 € |
Sous régime TVA | Non |
---|---|
Loué | Non |
Servitude | Oui |
---|
Égouts | Oui |
---|---|
Électricité | Oui |
Télévision par cable | Oui |
Gaz | Oui |
Câbles téléphoniques | Oui |
Eau | Oui |
Châssis (type) | pvc |
---|
Type d'environnement | zone d'habitation |
---|---|
Risque d'inondation (type innondation) | pas situé en zone inondable |
Attestation du sol | Oui |
---|---|
Certificat d'électricité (oui/non) | non |
Surface de terrasse 1 | 20 m² |
---|
Label PEB (classe) | G |
---|---|
PEB E-SPEC (kwh/m²/an) | 607 |
Emission CO2 (émission CO2) | 111 |
E total (Kwh/an) | 81488 |
PEB code unique | 20230124010952 |
PEB valide jusqu'au (datetime) | 24/01/2033 |
Date du PEB (datetime) | 24/01/2023 |