
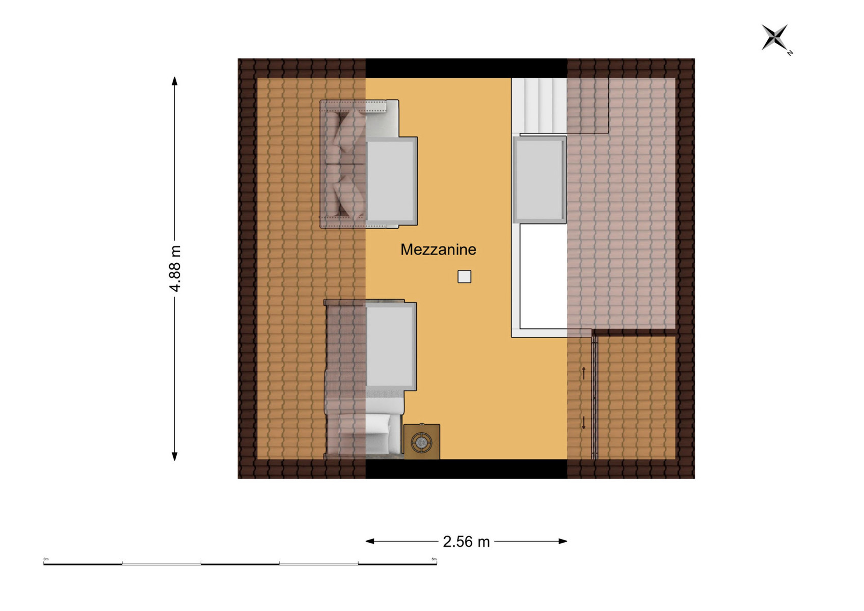
***VENDU*** A voir sans tarder !! Maison de maitre, 4 chambres avec jardin, garage et cave apportera tout le confort nécessaire pour votre famille. Idéalement située, cette propriété offre un cadre de vie exceptionnel à proximité de toutes les commodités, y compris commerces, écoles, et gare. Caractéristiques de la propriété : Superficie habitable de 195 m² (ref.PEB), Au rez-de-chaussée: hall d'entrée, salon, salle à manger, cuisine full équipée, buanderie avec w.c. Au 1er étage, hall de nuit, 2 chambres spacieuses dont une avec mezzanine, une salle de bain avec w.c. Au 2eme étage: hall de nuit et 2 chambres. Extérieur: Cour, terrasse et jardin, idéal pour les moments de détente en plein air et garage 1 voiture pour un stationnement pratique. Sous-sols: Caves offrant un espace supplémentaire de stockage et chaufferie. Confort: PEB de classe C (196 kwh/m².an), conso.totale: 38111 kwh/an, CO²: 36kg. N° unique:20230525015292 , Installation électrique conforme, chauffage central au gaz 2023, dble vitrage. L'emplacement de cette maison de maître vous permet de profiter de la tranquillité d'un quartier résidentiel tout en étant à quelques pas des activités urbaines. Que ce soit pour les besoins de la vie quotidienne ou les déplacements professionnels, la proximité des commerces, des écoles et de la gare facilitera votre quotidien. Ne manquez pas l'opportunité d'acquérir cette demeure élégante et fonctionnelle. Prix: F.O à partir de 265.000€ R.C: 779€ (poss.droits réduits si 3 enfants ou +). Pour une visite, contactez Sophie Renard (Sofoximmo) au 0471/85.36.79.
Adresse :
Rue Neuve 17 - 7090 Braine-le-Comte
Référence | 5822627 |
---|---|
Catégorie | Maison de maître |
Meublé | Non |
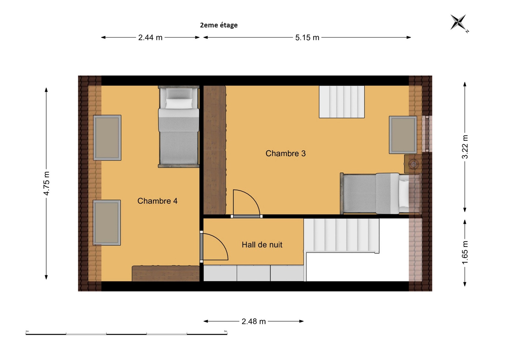
Nombre de chambres | 4 |
Nombre de salles de bain | 1 |
Jardin | Oui |
Surface du jardin | 200 m² |
Garage | Oui |
Terrasse | Oui |
Parking | Non |
Surface habitable | 195 m² |
Surface du terrain | 287 m² |
Disponibilité | à l'acte |
Nombre d'étages | 3 |
---|
Nombre de garage | 1 |
---|---|
Parking intérieur | Non |
Parking extérieur | Non |
Accès handicapés | Non |
---|---|
Cuisine | Oui |
Chauffage (ind/coll) (type (ind/coll)) | individuel |
Ascenseur | Non |
Double vitrage | Oui |
Chauffage (type) | gaz (chau. centr.) |
Type de cuisine | super-équipée |
Sdb (type) | douche dans le bain |
Orientation du bâtiment (façade arrière) | nord-ouest |
---|---|
Type d'environnement | zone d'habitation |
Type d'environnement 2 | central |
Exposition de la façade avant | sud-est |
Risque d'inondation (type innondation) | pas situé en zone inondable |
Largeur front de rue | 5.5 |
---|---|
Surface bâtie (surf. bât. princ.) | 87 |
Nbre de toilette(s) (nombre) | 2 |
Chambre 1 (surface) | 14 m² |
Chambre 2 (surface) | 12 m² |
Chambre 3 (surface) | 29 m² |
Chambre 4 (surface) | 11.5 m² |
Largeur de façade | 5.5 |
Nbre de terrasse(s) (nombre) | 1 |
Salle de séjour (surface) | 15.5 m² |
Salle à manger (surface) | 13.5 m² |
Cuisine (surface) | 23.5 m² |
Possibilité profession libérale (surface) | 15.5 m² |
Orientation de la terrasse 1 | nord-ouest |
Buanderie | Oui |
---|---|
Cave | Oui |
Volets | Oui |
---|
Magasins (distance (m)) | 500 |
---|---|
Écoles (distance (m)) | 400 |
Transports en commun (distance (m)) | 250 |
Magasins | Oui |
Ecoles | Oui |
Transports en commun | Oui |
Piscine | Non |
---|
Revenu cad. indexé (montant) | 1629 € |
---|---|
Revenu cadastral (€) (montant) | 779 € |
Égouts | Oui |
---|---|
Électricité | Oui |
Télévision par cable | Oui |
Gaz | Oui |
Câbles téléphoniques | Oui |
Eau | Oui |
Châssis (type) | bois ou pvc |
---|
Surface de terrasse 1 | 20 m² |
---|
Certificat d'électricité (oui/non) | oui, conforme |
---|---|
Certificat électricité - date | 14/03/2014 |
Label PEB (classe) | C |
---|---|
PEB E-SPEC (kwh/m²/an) | 196 |
Emission CO2 (émission CO2) | 36 |
E total (Kwh/an) | 38111 |
PEB code unique | 20230525015292 |
PEB valide jusqu'au (datetime) | 25/05/2033 |
Date du PEB (datetime) | 25/05/2023 |