
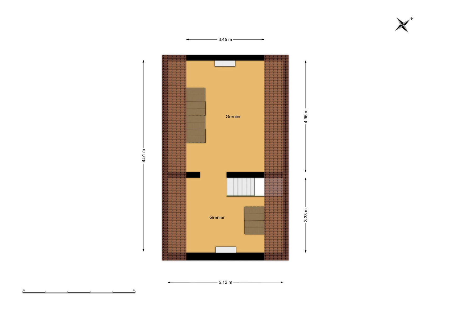
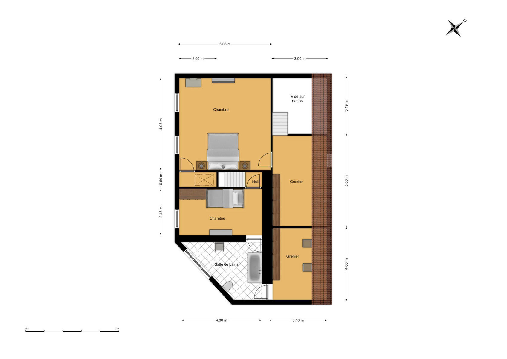
***VENDU***Dans un quartier calme, idéalement située et proche de toutes les commodités (transports, école, magasins, autoroute, gare), belle maison 3 chambres avec possibilité de profession libérale. Au rez-de chaussée: bureau prof ou chambre, grand salon, salle à manger, cuisine équipée, w.c, chaufferie et buanderie, atelier, terrasse couverte, jardin exposé sud est, kot de jardin, garage, carport. Au 1er étage: 2 chambres, 2 espaces greniers aménageables, salle de bain avec w.c. Au 2eme étage: 1 grand grenier aménageable en 2 chambres supplémentaires. Châssis bois dble vitrage, chauff.central gaz. RC: 884€. PEB: E (426 kwh/m².an) Conso.totale: 124.399 kwh/an. Co2: 19.271 kg/an. N°unique: 202211150002701692 RES1. Pour renseignements et visites: info@sofoximmo.be ou 0471/85.36.79. Prix: Faire offre à partir de 250.000€
Adresse :
Isidore Devillestraat 59 - 1500 Halle
Référence | 5287065 |
---|---|
Catégorie | Maison |
Meublé | Non |
Nombre de chambres | 3 |
Nombre de salles de bain | 1 |
Jardin | Oui |
Surface du jardin | 200 m² |
Garage | Oui |
Terrasse | Oui |
Parking | Oui |
Surface habitable | 150 m² |
Surface du terrain | 557 m² |
Disponibilité | 01/10/2023 |
Nombre d'étages | 1 |
---|
Nombre de garage | 1 |
---|---|
Parking intérieur | Non |
Parking extérieur | Oui |
Carport | Oui |
Parking(s) extérieur (nombre) | 2 |
Accès handicapés | Non |
---|---|
Cuisine | Oui |
Chauffage (ind/coll) (type (ind/coll)) | individuel |
Ascenseur | Non |
Double vitrage | Oui |
Chauffage (type) | gaz (chau. centr.) |
Type de cuisine | amer. super-équipée |
Sdb (type) | bain |
Orientation du bâtiment (façade arrière) | nord-est |
---|---|
Type d'environnement | calme |
Exposition de la façade avant | sud-ouest |
Risque d'inondation (type innondation) | pas situé en zone inondable |
Buanderie | Oui |
---|---|
Bureau | Oui |
Grenier | Oui |
Cave | Oui |
Nbre de toilette(s) (nombre) | 2 |
---|---|
Nombre de sdd | 0 |
Chambre 1 (surface) | 12 m² |
Chambre 2 (surface) | 25 m² |
Chambre 3 (surface) | 12 m² |
Nbre de terrasse(s) (nombre) | 1 |
Salle de séjour (surface) | 24 m² |
Salle à manger (surface) | 13.5 m² |
Cuisine (surface) | 13 m² |
Possibilité profession libérale (surface) | 12 m² |
Bureau (surface) | 12 m² |
Orientation de la terrasse 1 | sud-est |
Volets | Oui |
---|
Magasins (distance (m)) | 1000 |
---|---|
Écoles (distance (m)) | 2300 |
Transports en commun (distance (m)) | 200 |
Magasins | Oui |
Ecoles | Oui |
Transports en commun | Oui |
Autoroute | Oui |
Autoroute (distance (m)) | 1700 |
Piscine | Non |
---|
Sous régime TVA | Non |
---|
Égouts | Oui |
---|---|
Électricité | Oui |
Télévision par cable | Oui |
Gaz | Oui |
Câbles téléphoniques | Oui |
Eau | Oui |
Châssis (type) | bois |
---|
Surface de terrasse 1 | 18 m² |
---|
Type de revêtement de sol | carrelages |
---|
Revenu cadastral (€) (montant) | 884 € |
---|
Certificat d'électricité (oui/non) | oui, non conforme |
---|
Label PEB (classe) | E |
---|---|
PEB E-SPEC (kwh/m²/an) | 426 |
E total (Kwh/an) | 124399 |
PEB code unique | 202211150002701692 RES1 |
PEB valide jusqu'au (datetime) | 15/11/2023 |
Date du PEB (datetime) | 15/11/2022 |