Villa - option v. - 1480 Tubize

Villa - à vendre - 1480 Tubize
5 2 265 m² 2 4 PEB : C

Description

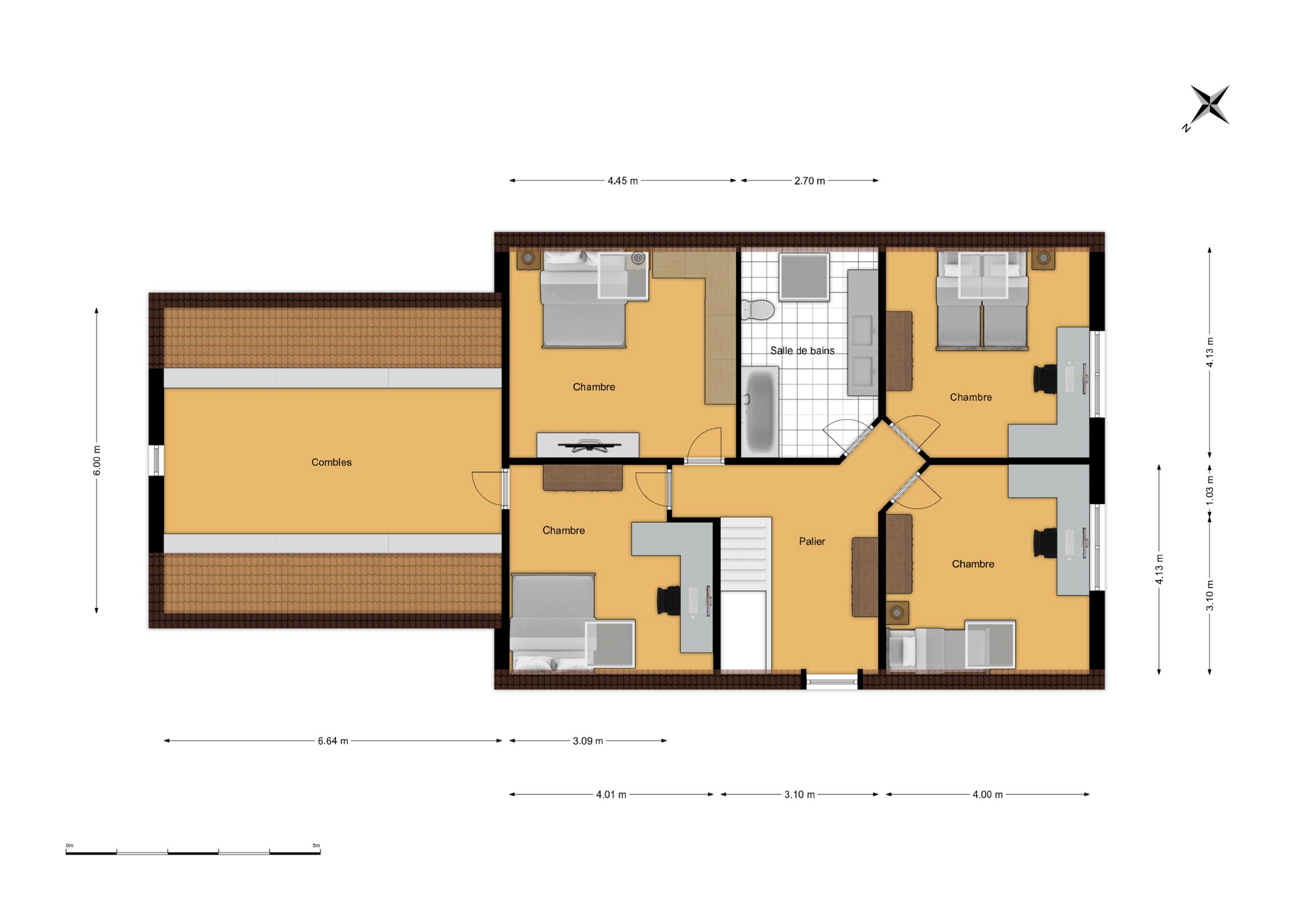
***VENDU***Venez découvrir cette magnifique villa de 265m² (selon PEB) ultra lumineuse construite en 2009, idéalement située à Tubize (Saintes) dans un quartier résidentiel calme et très recherché. Parfaitement conçue pour accueillir une famille, elle offre de superbes volumes et un confort optimal. Le rez-de-chaussée se compose d’un vaste hall d’entrée de 12,7 m² avec WC séparé et lave-mains, d’un grand séjour baigné de lumière de 33,56 m², d’une cuisine équipée de 12 m², d’une buanderie/espace de provisions de 7,44 m², ainsi que d’une chambre ou bureau de 16,4 m² avec salle de douche privative de 5 m². Un garage spacieux de 40 m² pouvant accueillir deux voitures complète ce niveau. À l’étage, vous profiterez d’un hall de nuit de 12,70 m² desservant quatre chambres de 18,38 m², 16,52 m², 16,52 m² et 15,6 m², ainsi qu’une salle de bain de 11,15 m² avec baignoire, meuble lavabo et WC. Une grande pièce polyvalente de 40 m² peut servir de salle de jeux ou de rangement. Un grenier supplémentaire est accessible par trappe. À l’extérieur, vous bénéficierez d’une vaste terrasse de ±60 m² orientée sud-est et d’un jardin entièrement clôturé, idéal pour la vie familiale. La maison dispose d’une installation électrique conforme, du chauffage central au gaz et d’un poêle à bois Stuv 30 compact avec kit masse. PEB C (244kwh/m².an), conso.totale: 64601 Kwh/an. Co2: 45kg. N°: 20251127015220. Prix : Faire offre à partir de 515.000 €. A visiter sans tarder : Sofoximmo – Sophie : 0471/85.36.79

Adresse :

Rue de Rebecq 14 - 1480 Tubize

Documents

Général

Référence 7286502
Catégorie Villa
Meublé Non
Nombre de chambres 5
Nombre de salles de bain 2
Jardin Oui
Surface du jardin 600 m²
Garage Oui
Terrasse Oui
Parking Oui
Surface habitable 265 m²
Surface du terrain 1232 m²
Disponibilité à l'acte

Bâtiment

Année de construction 2009
Nombre de garage 2
Parking intérieur Oui
Parking extérieur Oui
Parking(s) extérieur (nombre) 4
Type de toit en pente

Nom, catégorie & situation

Nombre d'étages (numéro) 1

Equipement de base

Accès handicapés Oui
Cuisine Oui
Chauffage (ind/coll) (type (ind/coll)) individuel
Ascenseur Non
Chauffage (Format/energie) gaz (chau. centr.)
Type de cuisine équipée
Sdb (Type) douche dans le bain

Spécificités terrain

Orientation du bâtiment (-) sud-est
Type d'environnement calme
Type d'environnement 2 campagne
Exposition de la façade avant (-) nord-ouest
Risque d'inondation (type innondation) pas situé en zone inondable

En chiffres

Largeur front de rue 38
Surface bâtie (surf. bât. princ.) 153
Nbre de toilette(s) (nombre) 2
Nombre de sdd 1
Chambre 1 (surface) 16.4 m²
Chambre 2 (surface) 18.38 m²
Chambre 3 (surface) 16.52 m²
Chambre 4 (surface) 16.52 m²
Chambre 5 (surface) 15.6 m²
Largeur de façade 18.78
Nbre de terrasse(s) (nombre) 1
Salle de séjour (surface) 33.56 m²
Salle à manger (surface) 16.5 m²
Cuisine (surface) 12 m²
Possibilité profession libérale (surface) 15.9 m²
Orientation de la terrasse 1 (-) sud-est

Divers

Buanderie Oui
Bureau Oui
Grenier Oui

À proximité

Magasins (distance (m)) 600
Écoles (distance (m)) 400
Transports en commun (distance (m)) 750
Centre sportif (distance (m)) 4000
Magasins Oui
Ecoles Oui
Transports en commun Oui
Centre sportif Oui
Autoroute Oui
Autoroute (distance (m)) 2700

Equipement extérieur

Piscine Non

Charges & Rendement

Sous régime TVA Non

Raccordements

Égouts Oui
Électricité Oui
Gaz Oui
Eau Oui

Équipements techniques

Châssis (Ouvertures) pvc

Caractéristiques Principales

Surface de terrasse 1 60 m²

Type de matériau & évaluation

Type de revêtement de sol carrelages

Cadastre

Revenu cadastral (€) (montant) 1773 €

Certificats / Attestations

Certificat d'électricité (oui/non) oui, conforme

Certificats énergétiques

Label PEB (Classe) C
PEB E-SPEC (kwh/m²/an) (Consommation énergétique) 244
Emission CO2 (Emission GES) 45
E total (Kwh/an) 64601
PEB code unique (-) 20251127015220
PEB valide jusqu'au (validité) 27/11/2035
Date du PEB 27/11/2025
Prendre contact pour le bien : 7286502

* Champs obligatoires

Préférences pour les cookies

La protection de vos données personnelles est importante pour nous. C’est pourquoi nous détaillons ci-dessous les différents services et fonctionnalités du site qui utilisent des cookies et nous vous laissons décider des cookies que vous souhaitez autoriser ou refuser.

Veuillez cependant noter que si vous bloquez certains types de cookies, cela pourrait impacter votre expérience de navigation sur notre site ainsi que les fonctionnalités disponibles.

Nous utilisons des cookies fonctionnels obligatoires pour assurer le bon fonctionnement du site. Ils sont, par exemple, nécessaires pour retrouver le résultat d’une recherche ou enregistrer le choix de la langue.

Certaines fonctionnalités, comme l’affichage de vidéos ou de cartes géographiques, sont assurées via des composants externes développés par des partenaires comme YouTube ou Google. Certains composants utilisent des cookies qui sont susceptibles de permettre à ces tiers de suivre le comportement des internautes afin, par exemple, de réaliser du ciblage publicitaire. L’activation de ces fonctionnalités et des cookies associés est donc soumis à votre consentement.