
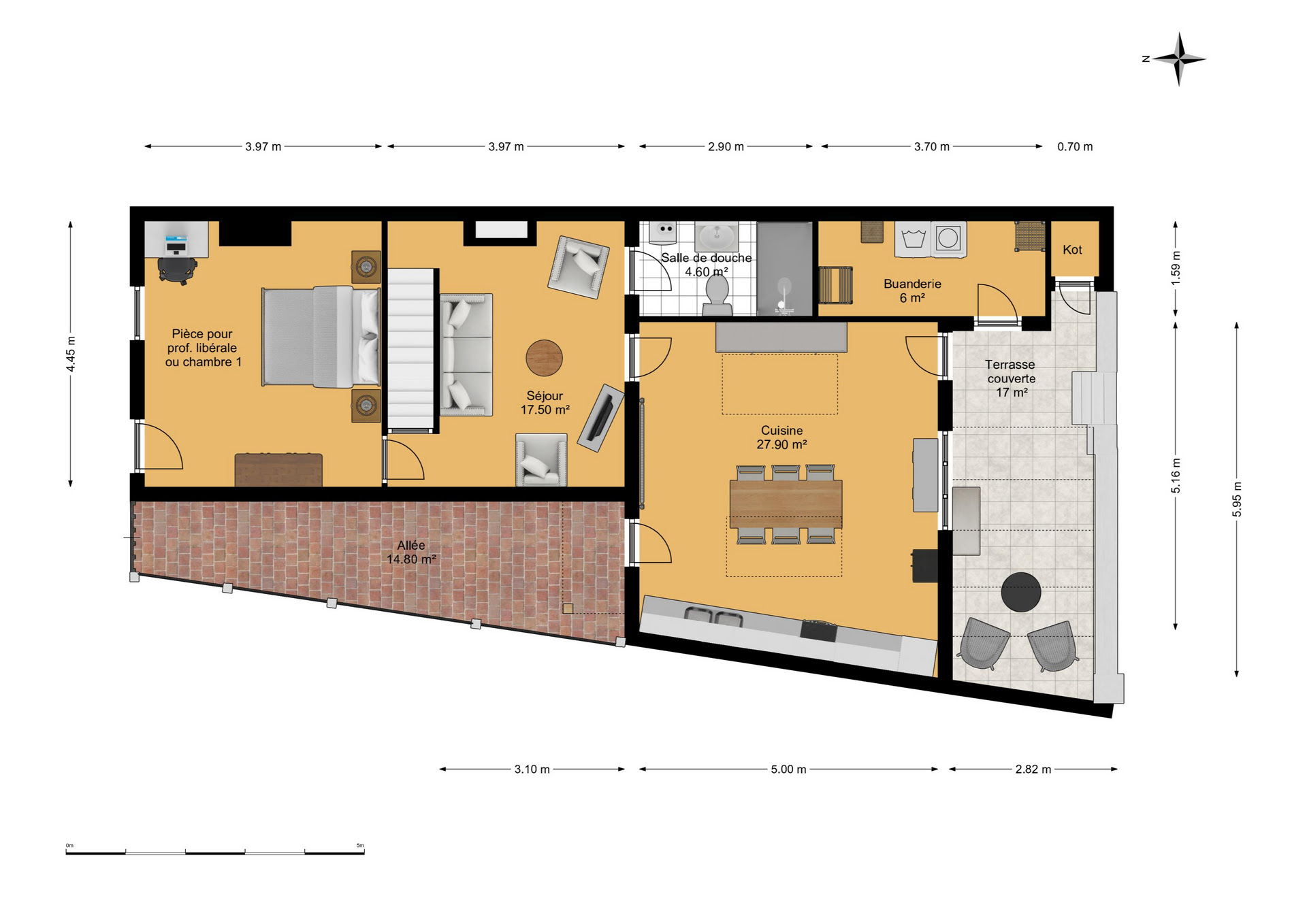
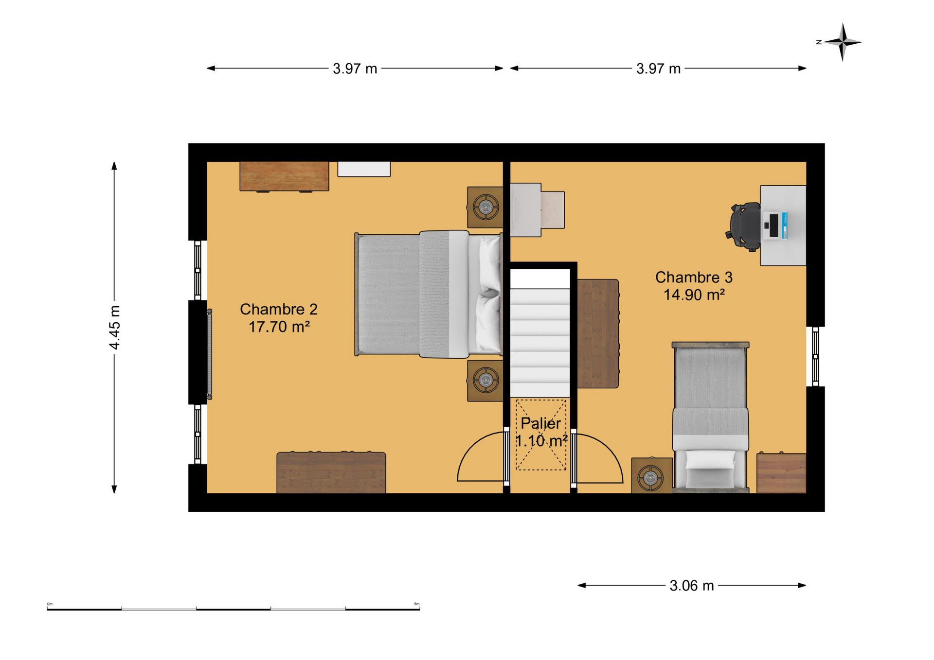
***VENDU*** Maison coup de coeur !!! Superbe maison soignée 3 façades située à 10 minutes à pieds du centre, des commerces et de la gare. Cette maison offre 2 accès, idéale aussi pour y installer une profession libérale. Elle se compose comme suit: Au rez de chaussée, allée latérale de +/- 15m² avec patio donnant accès à une magnifique et grande cuisine de +/- 28m² full équipée, un séjour de +/- 18m², une pièce pour prof. libérale ou chambre en plain pied de +/- 18m², une salle de douche de +/- 4,6m² avec w.c, meuble lavabo et douche à l'italienne, une belle buanderie de +/- 6m² offrant la possibilité d'y placer également une seconde pièce d'eau, une belle terrasse couverte de +/- 17m², une terrasse plein sud de 15m², un beau jardin de +/-100m² agréablement fleuri, une terrasse arrière de +/- 14m², un cabanon de jardin, un espace potager de +/-9m². Au 1er étage: 2 chambres de +/-18m² et +/-15m². Au grenier: Grenier à isoler, aménageable de +/-22m². En Sous-sols, magnifique caves voutées et saines de +/-28m². Confort: Double vitrage, CC gaz, volets. PEB: F (489 kwh/m².an), Conso.totale: 63761 KWh/an, CO²: 92kg. N° unique: 20220503013451. Prix: Faire offre à partir de 265.000€. RC: 565€ (poss.frais réduits). Contact: Sofoximmo: 0471/85.36.79
Adresse :
Rue Ripainoise 50 - 1480 Tubize
Référence | 5706712 |
---|---|
Catégorie | Maison |
Meublé | Non |
Nombre de chambres | 3 |
Nombre de salles de bain | 1 |
Jardin | Oui |
Surface du jardin | 100 m² |
Garage | Non |
Terrasse | Oui |
Parking | Non |
Surface habitable | 130 m² |
Surface du terrain | 253 m² |
Disponibilité | à l'acte |
Nombre d'étages | 2 |
---|
Nombre de garage | 0 |
---|---|
Parking intérieur | Non |
Parking extérieur | Non |
Année de rénovation | 2008 |
Parking(s) intérieur (nombre) | 0 |
Parking(s) extérieur (nombre) | 0 |
Accès handicapés | Non |
---|---|
Cuisine | Oui |
Chauffage (ind/coll) (type (ind/coll)) | individuel |
Ascenseur | Non |
Double vitrage | Oui |
Chauffage (type) | gaz (chau. centr.) |
Type de cuisine | amer. super-équipée |
Sdb (type) | douche |
Orientation du bâtiment (façade arrière) | sud |
---|---|
Type d'environnement | zone d'habitation |
Type d'environnement 2 | calme |
Exposition de la façade avant | nord |
Risque d'inondation (type innondation) | pas situé en zone inondable |
Buanderie | Oui |
---|---|
Véranda | Oui |
Bureau | Oui |
Grenier | Oui |
Cave | Oui |
Nbre de toilette(s) (nombre) | 1 |
---|---|
Nombre de sdd | 1 |
Chambre 1 (surface) | 18 m² |
Chambre 2 (surface) | 18 m² |
Chambre 3 (surface) | 15 m² |
Nbre de terrasse(s) (nombre) | 3 |
Salle de séjour (surface) | 18 m² |
Cuisine (surface) | 28 m² |
Possibilité profession libérale (surface) | 18 m² |
Orientation de la terrasse 1 | sud |
Profession libérale poss. | Oui |
---|
Volets | Oui |
---|
Magasins (distance (m)) | 800 |
---|---|
Écoles (distance (m)) | 400 |
Transports en commun (distance (m)) | 400 |
Centre sportif (distance (m)) | 1400 |
Magasins | Oui |
Ecoles | Oui |
Transports en commun | Oui |
Centre sportif | Oui |
Autoroute | Oui |
Autoroute (distance (m)) | 6000 |
Précompte immobilier (montant) | 459.87 € |
---|
Piscine | Non |
---|
Revenu cad. indexé (montant) | 1182 € |
---|---|
Surface (ha/a/ca) (surf. (ha/a/ca)) | 253 |
Revenu cadastral (€) (montant) | 565 € |
Égouts | Oui |
---|---|
Électricité | Oui |
Télévision par cable | Oui |
Gaz | Oui |
Eau | Oui |
Châssis (type) | bois ou pvc |
---|
Surface de terrasse 1 | 47 m² |
---|
Type de revêtement de sol | carrelages |
---|
Certificat d'électricité (oui/non) | oui, non conforme |
---|
Label PEB (classe) | F |
---|---|
PEB E-SPEC (kwh/m²/an) | 489 |
Emission CO2 (émission CO2) | 92 |
E total (Kwh/an) | 63761 |
PEB code unique | 20220503013451 |
PEB valide jusqu'au (datetime) | 03/05/2032 |
Date du PEB (datetime) | 03/05/2022 |