
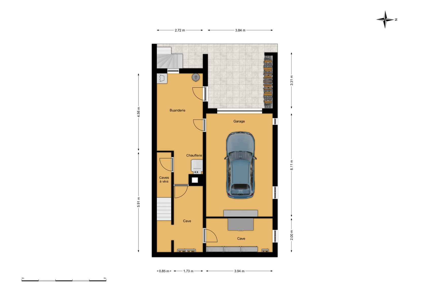
***VENDU***Superbe maison 3 façades avec magnifique terrain de 9a37ca à visiter sans tarder !!! En sous sols: spacieuses caves avec espace buanderie, chaufferie, cave à vins, cave à provisions, garage avec établi, abris pour rangement bois. Magnifique jardin bien entretenu avec Noyer, allée latérale offrant 3 emplacements de parking. Au rez-de-chaussée: hall d'entrée avec placard, w.c avec lave-mains, cuisine de 12,40m² sur mesure et full équipée, spacieux séjour carrelé de 32m² avec poêle à bois donnant sur nouvelle terrasse de 13m². Au 1er étage: hall de nuit, w.c, salle de bains avec baignoire et meuble lavabo, 3 chambres (16m², 16m² et 12,5m²). Grenier: Grenier de rangement accessible par trappe. Confort: Chauff.central de 2018, dble vitrage en Meranti, nouvelle toiture et isolation de 2018, nouvelle terrasse avec tente solaire électrique, citerne d'eau de pluie de 6000L avec groupe hydrophore, volets électriques à l'arrière, système d'alarme. PEB: C 183Kwh/m².an, Conso.totale: 25312 kWh/an; Co²: 34kg.N°unique: 20230827009661. R.C: 1100€. Prix: 345.000€. Contact: Sofoximmo: 0471/85.36.79
Adresse :
Rue des Freres Lefort 371 - 1480 Tubize
Référence | 5509232 |
---|---|
Catégorie | Maison |
Meublé | Non |
Nombre de chambres | 3 |
Nombre de salles de bain | 1 |
Jardin | Oui |
Surface du jardin | 800 m² |
Garage | Oui |
Terrasse | Oui |
Parking | Oui |
Surface habitable | 139 m² |
Surface du terrain | 937 m² |
Disponibilité | à l'acte |
Année de construction | 1984 |
---|---|
Nombre de garage | 1 |
Parking intérieur | Oui |
Parking extérieur | Oui |
Année de rénovation | 2018 |
Parking(s) intérieur (nombre) | 1 |
Parking(s) extérieur (nombre) | 3 |
Type de toit | en pente |
Nombre d'étages | 1 |
---|
Accès handicapés | Non |
---|---|
Cuisine | Oui |
Chauffage (ind/coll) (type (ind/coll)) | individuel |
Ascenseur | Non |
Double vitrage | Oui |
Chauffage (type) | gaz (chau. centr.) |
Type de cuisine | super-équipée |
Sdb (type) | bain |
Double vitrage (type) | isol. thermique |
Orientation du bâtiment (façade arrière) | ouest |
---|---|
Type d'environnement | calme |
Type d'environnement 2 | zone d'habitation |
Exposition de la façade avant | est |
Risque d'inondation (type innondation) | pas situé en zone inondable |
Surface bâtie (surf. bât. princ.) | 82 |
---|---|
Nbre de toilette(s) (nombre) | 2 |
Chambre 1 (surface) | 16 m² |
Chambre 2 (surface) | 16 m² |
Chambre 3 (surface) | 12.5 m² |
Largeur de façade | 7.31 |
Nbre de terrasse(s) (nombre) | 1 |
Salle de séjour (surface) | 32 m² |
Cuisine (surface) | 12.4 m² |
Orientation de la terrasse 1 | ouest |
Buanderie | Oui |
---|---|
Grenier | Oui |
Cave | Oui |
Volets | Oui |
---|---|
Volets (type) | électrique |
Alarme | Oui |
Magasins (distance (m)) | 3000 |
---|---|
Écoles (distance (m)) | 800 |
Transports en commun (distance (m)) | 800 |
Centre sportif (distance (m)) | 3000 |
Magasins | Oui |
Ecoles | Oui |
Transports en commun | Oui |
Centre sportif | Oui |
Autoroute | Oui |
Autoroute (distance (m)) | 7000 |
Piscine | Non |
---|---|
Citerne d'eau | Oui |
Servitude | Oui |
---|---|
Permis de bâtir | Oui |
Destination bâtiment (type) | privé - unifamilial |
Droit de préemption | Non |
Affectation urbanistique | zone d'habitat rurale |
Égouts | Oui |
---|---|
Électricité | Oui |
Télévision par cable | Oui |
Gaz | Oui |
Câbles téléphoniques | Oui |
Eau | Oui |
Châssis (type) | bois |
---|
Surface de terrasse 1 | 13 m² |
---|
Type de revêtement de sol | carrelages |
---|
Surface (ha/a/ca) (surf. (ha/a/ca)) | 937 |
---|---|
Revenu cadastral (€) (montant) | 1100 € |
Certificat d'électricité (oui/non) | oui, non conforme |
---|
Label PEB (classe) | C |
---|---|
PEB E-SPEC (kwh/m²/an) | 183 |
Emission CO2 (émission CO2) | 34 |
E total (Kwh/an) | 25312 |
PEB code unique | 202308227009661 |
PEB valide jusqu'au (datetime) | 27/08/2033 |
Date du PEB (datetime) | 27/08/2023 |