
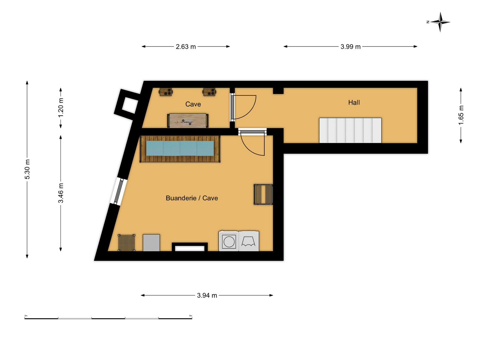
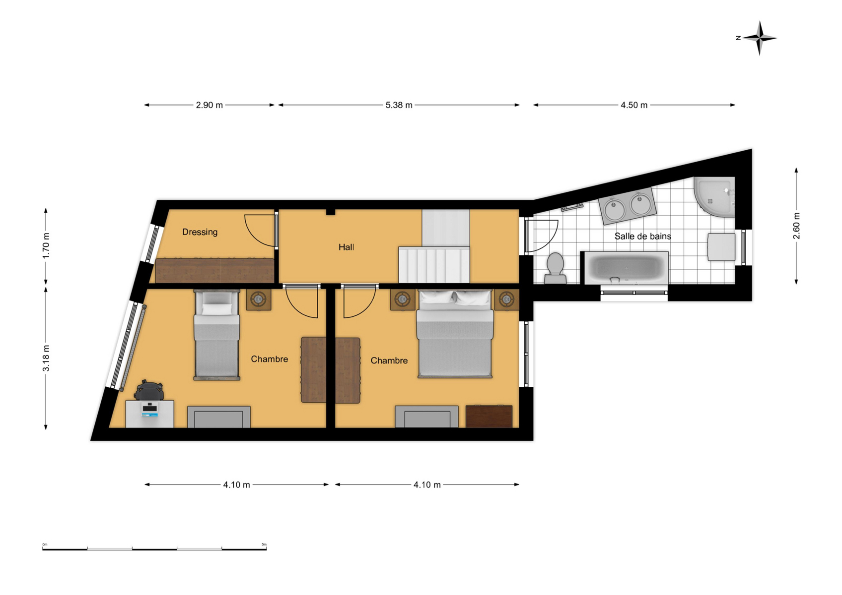
***VENDU*** Superbe maison idéalement située au centre de Tubize dans une rue calme avec un magnifique terrain à bâtir. La maison est composée d'un beau hall d'entrée de +/- 12m², un w.c , un séjour de +/-30m² , une salle à manger de +/-13m², une cuisine équipée de +/- 8m², une terrasse couverte avec barbecue de +/- 18m², un beau jardin ou beau terrain à bâtir, un atelier de +/-20m², une serre. Au premier étage: Hall de nuit de +/- 9m², 2 belles chambres de +/-14m² et +/-13m² avec une pièce pouvant servir de dressing ou de bureau de +/-5m², une grande salle de bain de +/- 10m² avec douche, baignoire et espace buanderie, au 2eme étage et sous combles, un magnifique grenier isolé de +/-40m² pouvant être aménagé en 2 chambres supplémentaires. Grandes caves de +/- 21m² qui peuvent servir aussi de buanderie. Confort: ch.central au gaz à condensation de 2010, châssis dble vitrages, volets. Possibilité de location d'un spacieux garage pour 100€/mois. A voir absolument !!! PEB: D (324 kwh/m².an), conso.totale: 45935 kwh/an, CO2: 63kg, N° unique: 20230801012343. Prix: F.O à partir de 290.000€. Contact: Sofoximmo:0471/85.36.79
Adresse :
Rue du Hocquet 12 - 1480 Tubize
Référence | 5473726 |
---|---|
Catégorie | Maison |
Meublé | Non |
Nombre de chambres | 3 |
Nombre de salles de bain | 1 |
Jardin | Oui |
Surface du jardin | 400 m² |
Garage | Oui |
Terrasse | Oui |
Parking | Non |
Surface habitable | 160 m² |
Surface du terrain | 508 m² |
Disponibilité | à l'acte |
Année de construction | 1949 |
---|---|
Nombre de garage | 1 |
Parking intérieur | Non |
Parking extérieur | Non |
Année de rénovation | 1988 |
Nombre d'étages | 2 |
---|
Accès handicapés | Non |
---|---|
Chauffage (ind/coll) (type (ind/coll)) | individuel |
Ascenseur | Non |
Double vitrage | Oui |
Chauffage (type) | gaz (chau. centr.) |
Type de cuisine | équipée |
Sdb (type) | douche et bain |
Orientation du bâtiment (façade arrière) | sud |
---|---|
Type d'environnement | centre ville |
Type d'environnement 2 | calme |
Exposition de la façade avant | nord |
Largeur front de rue | 14 |
---|---|
Nbre de toilette(s) (nombre) | 2 |
Nombre de sdd | 0 |
Chambre 1 (surface) | 13 m² |
Chambre 2 (surface) | 13 m² |
Chambre 3 (surface) | 45 m² |
Largeur de façade | 5.5 |
Nbre de terrasse(s) (nombre) | 1 |
Salle de séjour (surface) | 30 m² |
Cuisine (surface) | 6 m² |
Bureau (surface) | 5 m² |
Orientation de la terrasse 1 | sud |
Buanderie | Oui |
---|---|
Grenier | Oui |
Cave | Oui |
Volets | Oui |
---|
Magasins (distance (m)) | 250 |
---|---|
Écoles (distance (m)) | 205 |
Transports en commun (distance (m)) | 300 |
Centre sportif (distance (m)) | 200 |
Magasins | Oui |
Ecoles | Oui |
Transports en commun | Oui |
Centre sportif | Oui |
Autoroute | Oui |
Autoroute (distance (m)) | 2000 |
Précompte immobilier (montant) | 826.89 € |
---|
Piscine | Non |
---|
Revenu cad. indexé (montant) | 1594 € |
---|---|
Revenu cadastral (€) (montant) | 835 € |
Égouts | Oui |
---|---|
Électricité | Oui |
Télévision par cable | Oui |
Gaz | Oui |
Câbles téléphoniques | Oui |
Eau | Oui |
Châssis (type) | pvc |
---|
Surface de terrasse 1 | 18 m² |
---|
Type de revêtement de sol | quickstep |
---|
Certificat d'électricité (oui/non) | oui, non conforme |
---|
Label PEB (classe) | D |
---|---|
PEB E-SPEC (kwh/m²/an) | 324 |
Emission CO2 (émission CO2) | 63 |
E total (Kwh/an) | 45935 |
PEB code unique | 20230801012343 |
PEB valide jusqu'au (datetime) | 01/08/2033 |
Date du PEB (datetime) | 01/08/2023 |