
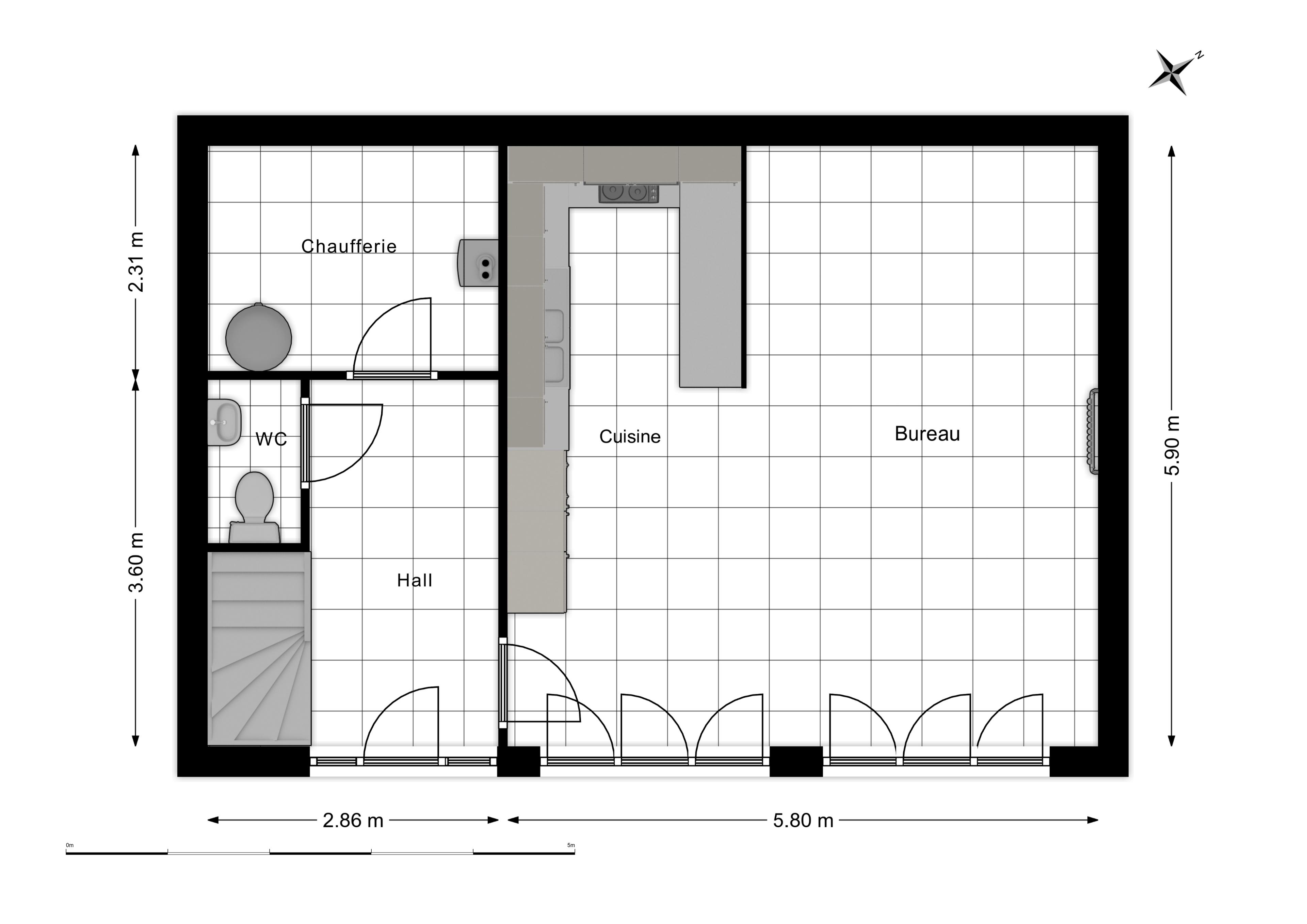
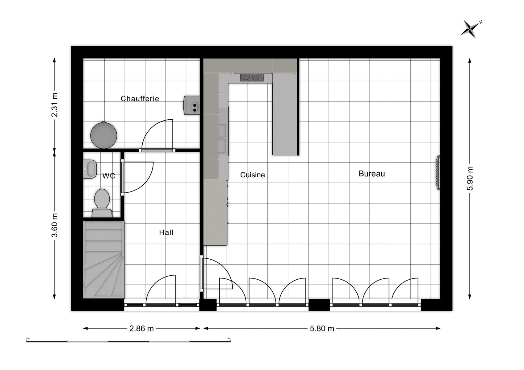
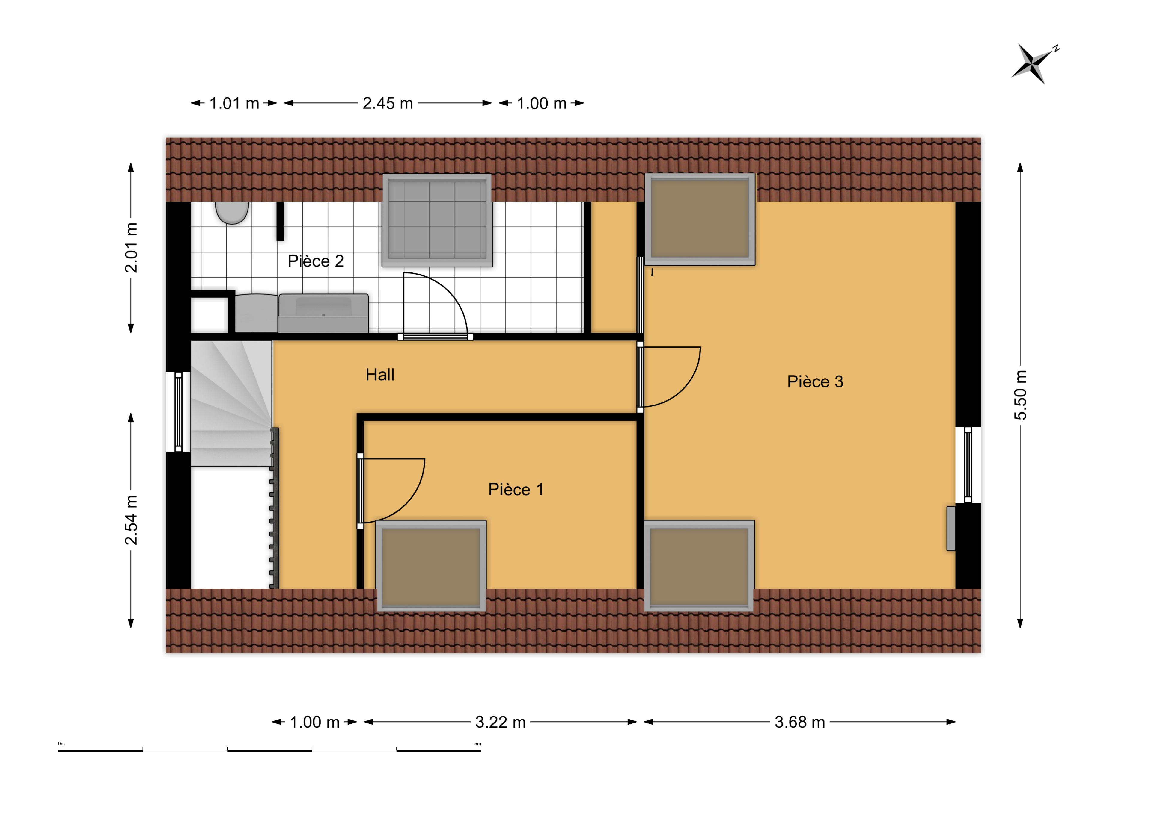
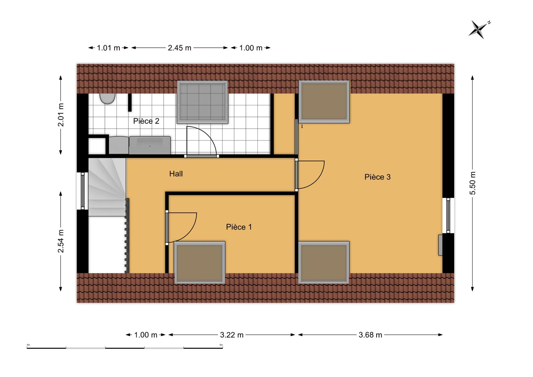
***VENDU***Propriété d'exception de 454 m² (ref.PEB) composée d'une habitation principale et d'une annexe indépendante pouvant servir de bureaux pour profession libérale ou possibilité de maison kangourou sur terrain de 36a10ca. Présentation vidéo: https://youtu.be/_ks7_piKAGk. Vous serez séduit par son cadre idyllique et ses volumes. La villa se compose au rez-de-chaussée, d'un spacieux hall d'entrée, w.-c., chambre 1 ou bureau, séjour, cuisine full équipée, buanderie. Au 1er étage: hall de nuit desservant une chambre parentale avec dressing et salle de bains + douche, 2 chambres supplémentaires, 1 salle de bains. Grand grenier accessible par trappe. La dépendance se compose d'un hall d'entrée, w.-c., d'une pièce principale avec coin cuisine de +/- 34m², pièce chaufferie. Au 1er étage: hall avec 3 pièces de +/- 8, 9 et 20 m². Possibilité d'habitat solidaire ou d'habitation plurifamiliale moyennant obtention d'un permis d'urbanisme ; beau potentiel ! Extérieur: magnifique jardin piscinable jusqu’à 75m², terrasse de 170m², carport pour 2 voitures et plusieurs emplacements de voitures. Technique: chauff.central au mazout, électricité des 2 entités conforme, alarme. PEB C: 192 kwh/m².an. E-total: 87311 Kwh/an. CO²: 48 kg. N° unique: 20201029001432. R.C: 2350€. Prix: 769.000€.Tel: 0471/85.36.79
Adresse :
Avenue Cantelaube 22 - 1430 Rebecq
Référence | 4533908 |
---|---|
Catégorie | Villa |
Meublé | Non |
Nombre de chambres | 5 |
Nombre de salles de bain | 2 |
Jardin | Oui |
Surface du jardin | 3000 m² |
Garage | Non |
Terrasse | Oui |
Parking | Oui |
Surface habitable | 454 m² |
Surface du terrain | 3601 m² |
Année de construction | 1999 |
---|---|
Parking intérieur | Non |
Parking extérieur | Oui |
Carport | Oui |
Année de rénovation | 2010 |
Parking(s) extérieur (nombre) | 6 |
Accès handicapés | Oui |
---|---|
Chauffage (ind/coll) (type (ind/coll)) | individuel |
Ascenseur | Non |
Chauffage (type) | mazout (chauf. centr.) |
Type de cuisine | amer. super-équipée |
Sdb (type) | douche et bain |
Buanderie | Oui |
---|---|
Bureau | Oui |
Grenier | Oui |
Nbre de toilette(s) (nombre) | 5 |
---|---|
Chambre 1 (surface) | 15 m² |
Chambre 2 (surface) | 33 m² |
Chambre 3 (surface) | 14 m² |
Chambre 4 (surface) | 16 m² |
Chambre 5 (surface) | 8 m² |
Nbre de terrasse(s) (nombre) | 2 |
Salle de séjour (surface) | 65 m² |
Cuisine (surface) | 18.5 m² |
Possibilité profession libérale (surface) | 70 m² |
Bureau (surface) | 8 m² |
Orientation de la terrasse 1 | nord-ouest |
Profession libérale poss. | Oui |
---|---|
Destination bâtiment (type) | prof. libérale + habitation |
Magasins (distance (m)) | 1300 |
---|---|
Écoles (distance (m)) | 1600 |
Transports en commun (distance (m)) | 900 |
Centre sportif (distance (m)) | 5000 |
Magasins | Oui |
Ecoles | Oui |
Transports en commun | Oui |
Centre sportif | Oui |
Autoroute | Oui |
Autoroute (distance (m)) | 2300 |
Précompte immobilier (montant) | 2020.29 € |
---|
Piscine | Non |
---|---|
Type de piscine | piscinable 75m² |
Revenu cad. indexé (montant) | 4198 € |
---|---|
Revenu cadastral (€) (montant) | 2350 € |
Sécurité | Oui |
---|---|
Alarme | Oui |
Égouts | Non |
---|---|
Électricité | Oui |
Télévision par cable | Oui |
Eau | Oui |
Type d'environnement | campagne |
---|---|
Type d'environnement 2 | calme |
Exposition de la façade avant | sud-est |
Attestation du sol | Oui |
---|---|
Capacité de la citerne à mazout (capacite) | 2950 |
Certificat d'électricité (oui/non) | oui, conforme |
Surface de terrasse 1 | 170 m² |
---|
Label PEB (classe) | C |
---|---|
PEB E-SPEC (kwh/m²/an) | 192 |
Emission CO2 (émission CO2) | 48 |
E total (Kwh/an) | 87311 |
PEB code unique | 20201029001435 |