Studio - vendu - 1480 Tubize

Studio - à vendre - 1480 Tubize
1 30 m² PEB : B

Description

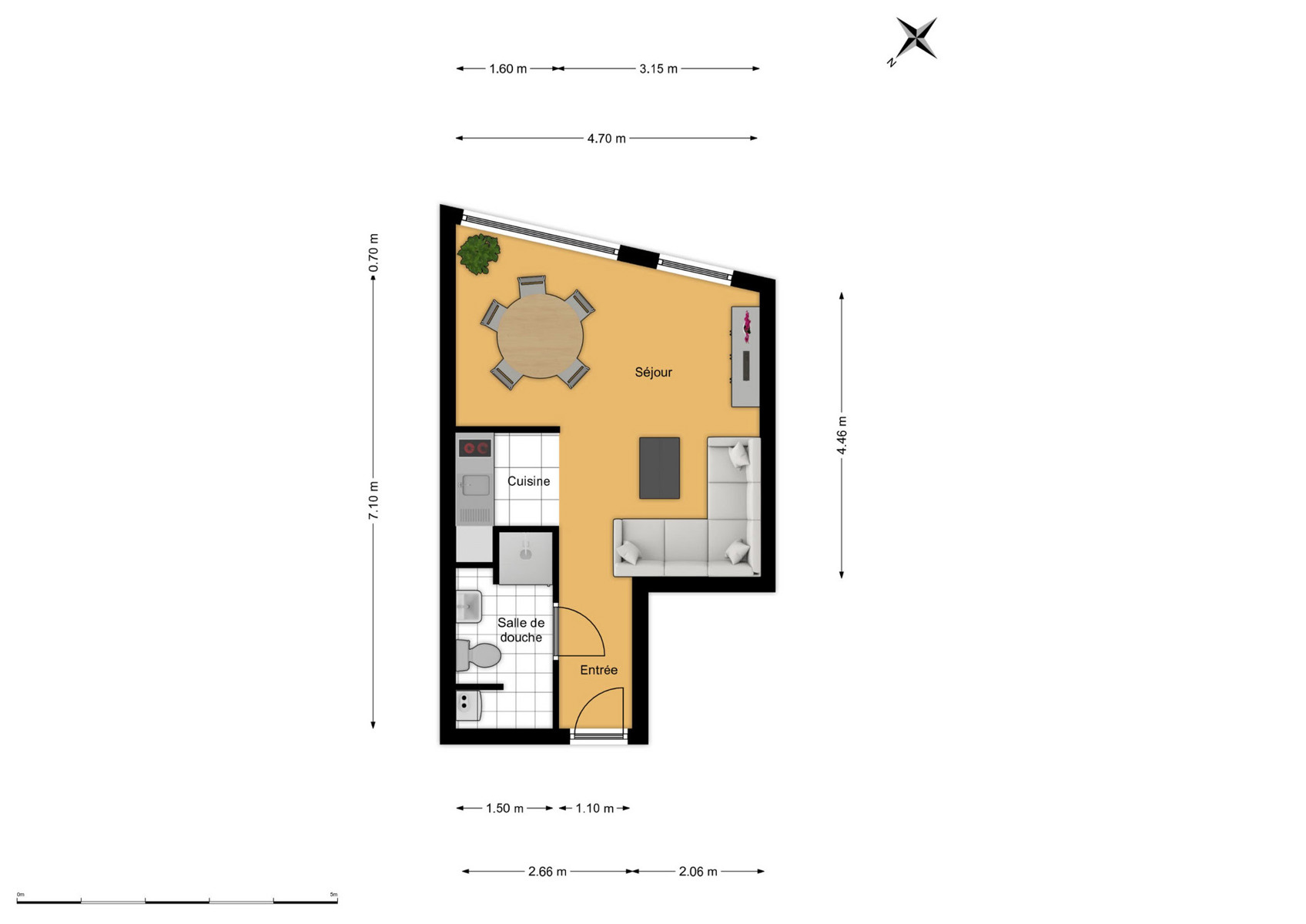
***VENDU*** Superbe studio au 1er étage en plein centre de Tubize, à 2 pas de la gare, des transports, des commerces et des écoles. Il se compose d'un beau séjour, d'une cuisine équipée d'une taque électrique, hotte, armoires de rangement , salle de douche avec douche, w.c, lavabo, espace buanderie/chaufferie. Cave. Confort: cc gaz à condensation, dble vitrage. PEB B (144 kwh/m².an) Conso.totale: 7583 kwh/an. Co²: 27kg. N° unique: 20230804001630. Prix: 95.000€. RC: 589€. Possibilité des frais réduits. Contact: Sofoximmo: 0471/85.36.79

Adresse :

Rue Ternard 15 - 1480 Tubize

Documents

Général

Référence 5472683
Catégorie Studio
Meublé Non
Nombre de salles de bain 1
Garage Non
Terrasse Non
Parking Non
Surface habitable 30 m²
Surface du terrain 414 m²
Disponibilité à l'acte

Bâtiment

Année de construction 1979
Parking intérieur Non
Parking extérieur Non
Année de rénovation 2023

Nom, catégorie & situation

Etage 1
Nombre d'étages (numéro) 1

Equipement de base

Accès handicapés Non
Cuisine Oui
Chauffage (ind/coll) (type (ind/coll)) individuel
Ascenseur Non
Chauffage (Format/energie) gaz (chau. centr.)
Type de cuisine kitchenette
Parlophone Oui

Divers

Buanderie Oui
Cave Oui

En chiffres

Nbre de toilette(s) (nombre) 1
Nombre de sdd 1
Salle de séjour (surface) 24 m²
Cuisine (surface) 2 m²
Salle de bain 1 (surface) 6.5 m²

À proximité

Magasins (distance (m)) 500
Écoles (distance (m)) 350
Transports en commun (distance (m)) 350
Centre sportif (distance (m)) 850
Magasins Oui
Ecoles Oui
Transports en commun Oui
Centre sportif Oui
Autoroute Oui
Autoroute (distance (m)) 4700

Coûts & Frais

Précompte immobilier (montant) 583.08 €

Charges & Rendement

Charges locataire (montant) 27 €

Equipement extérieur

Piscine Non

Cadastre

Revenu cad. indexé (montant) 1124 €
Revenu cadastral (€) (montant) 589 €

Raccordements

Égouts Oui
Électricité Oui
Gaz Oui
Câbles téléphoniques Oui
Eau Oui

Équipements techniques

Châssis (Ouvertures) aluminium

Spécificités terrain

Type d'environnement centre ville
Type d'environnement 2 calme
Exposition de la façade avant (-) sud
Risque d'inondation (type innondation) pas situé en zone inondable

Certificats / Attestations

Certificat d'électricité (oui/non) oui, non conforme

Certificats énergétique

Label PEB (Classe) B
PEB E-SPEC (kwh/m²/an) (Consommation énergétique) 144
Emission CO2 (Emission GES) 27
E total (Kwh/an) 7583
PEB code unique (-) 20230804001630
PEB valide jusqu'au (validité) 04/08/2033
Date du PEB 04/08/2023
Prendre contact pour le bien : 5472683

* Champs obligatoires

Préférences pour les cookies

La protection de vos données personnelles est importante pour nous. C’est pourquoi nous détaillons ci-dessous les différents services et fonctionnalités du site qui utilisent des cookies et nous vous laissons décider des cookies que vous souhaitez autoriser ou refuser.

Veuillez cependant noter que si vous bloquez certains types de cookies, cela pourrait impacter votre expérience de navigation sur notre site ainsi que les fonctionnalités disponibles.

Nous utilisons des cookies fonctionnels obligatoires pour assurer le bon fonctionnement du site. Ils sont, par exemple, nécessaires pour retrouver le résultat d’une recherche ou enregistrer le choix de la langue.

Certaines fonctionnalités, comme l’affichage de vidéos ou de cartes géographiques, sont assurées via des composants externes développés par des partenaires comme YouTube ou Google. Certains composants utilisent des cookies qui sont susceptibles de permettre à ces tiers de suivre le comportement des internautes afin, par exemple, de réaliser du ciblage publicitaire. L’activation de ces fonctionnalités et des cookies associés est donc soumis à votre consentement.